Multifunkční areál s bydlením i podnikáním – přímo u E55, Votice
Votice 
4 990 000 Kč
Multifunkční areál s bydlením i podnikáním – přímo u E55, Votice
Na prodej nabízíme rozsáhlý a plně oplocený areál se stavbami o celkové výměře 3 345 m², který díky své poloze, velikosti a dispozičnímu řešení představuje výjimečnou příležitost pro podnikatele i investory. Místo kombinuje možnost okamžitého provozu, ubytování pracovníků, skladového zázemí i bydlení v jedné lokalitě. Součástí nabídky jsou dvě samostatné stavby – oba objekty vedené jako rodinné domy – vhodné pro kanceláře, dílnu, sídlo firmy, provozovnu nebo ubytovací zařízení.
K areálu navazují také dva zemědělské pozemky o rozloze 1 692 m², díky kterým získáváte celkem 5 037 m² půdy ve vyhledávané zóně BV (bydlení venkovské) s širokým spektrem povoleného využití. Tato územní kategorie umožňuje jak bydlení, tak nekolizní výrobu, sklady, zázemí firmy, parkování techniky či ubytovací služby.
Umístění u hlavní silnice E55 zajišťuje perfektní viditelnost pro jakýkoliv druh podnikání – denně zde projede více než 15 000 vozidel. Výhodou je také přímý vjezd z komunikace a blízkost plánovaného sjezdu z dálnice D3 u Voračic, který v budoucnu ještě zvýší dostupnost a hodnotu lokality.
Co umožňuje územní plán (BV – bydlení venkovské)
-rodinné domy, venkovské usedlosti
-drobná a řemeslná výroba bez negativních vlivů
-mechanické dílny, servisní činnost
-sklady, parkování vozidel a techniky
-provozy služeb a obslužné objekty
-hobby zemědělství a chov
-ubytovací zařízení a ubytování zaměstnanců
-možnost parkování přímo na pozemku
Klíčové přednosti areálu
-propojení bydlení, podnikání a ubytování na jednom místě
-maximální viditelnost u E55, možnost legální reklamy (např. vozidlo s plachtou)
-velká variabilita díky zóně BV
-objekt A připraven k okamžitému využití
-připravené zázemí a prostor pro další úpravy
-strategická poloha u E55, nedaleko budoucího nájezdu na D3
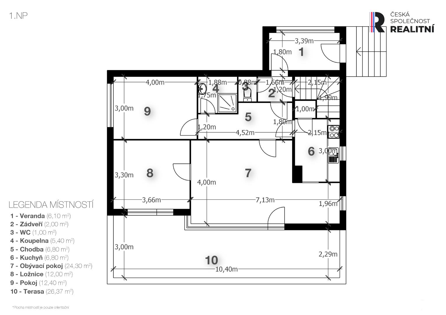
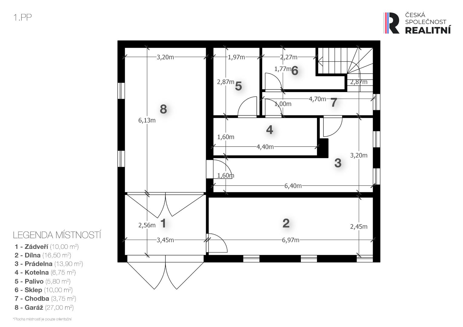
Popis staveb
Budova A
-částečně renovovaná, nová plastová okna a zateplení
-osazen moderním ekologickým kotlem H8–A se zásobníkem
-vhodné pro kancelář, firemní zázemí, ubytování
-navazuje na prostornou stodolu – ideální pro sklad či dílnu
Budova B
-určena k celkové rekonstrukci
-vhodná jako dílna, sklad, garáže nebo rozšíření provozu
Technické parametry
-elektřina 3×25 A
-voda přivedena z obecní studny – zdarma
-odpady vedeny do vlastní jímky
-mírně svažitý oplocený pozemek
-přímý sjezd z komunikace E55
Pro koho je nemovitost ideální?
Pro stavební a servisní firmy, e-shopy, řemeslníky, dopravce, podnikatele s potřebou skladů či zázemí techniky, nebo investory hledající objekt s možností ubytování zaměstnanců a dalším rozvojovým potenciálem.
Energetická náročnost: třída G (PENB se připravuje).
V případě zájmu o další informace nás kontaktujte.
Na prodej nabízíme rozsáhlý a plně oplocený areál se stavbami o celkové výměře 3 345 m², který díky své poloze, velikosti a dispozičnímu řešení představuje výjimečnou příležitost pro podnikatele i investory. Místo kombinuje možnost okamžitého provozu, ubytování pracovníků, skladového zázemí i bydlení v jedné lokalitě. Součástí nabídky jsou dvě samostatné stavby – oba objekty vedené jako rodinné domy – vhodné pro kanceláře, dílnu, sídlo firmy, provozovnu nebo ubytovací zařízení.
K areálu navazují také dva zemědělské pozemky o rozloze 1 692 m², díky kterým získáváte celkem 5 037 m² půdy ve vyhledávané zóně BV (bydlení venkovské) s širokým spektrem povoleného využití. Tato územní kategorie umožňuje jak bydlení, tak nekolizní výrobu, sklady, zázemí firmy, parkování techniky či ubytovací služby.
Umístění u hlavní silnice E55 zajišťuje perfektní viditelnost pro jakýkoliv druh podnikání – denně zde projede více než 15 000 vozidel. Výhodou je také přímý vjezd z komunikace a blízkost plánovaného sjezdu z dálnice D3 u Voračic, který v budoucnu ještě zvýší dostupnost a hodnotu lokality.
Co umožňuje územní plán (BV – bydlení venkovské)
-rodinné domy, venkovské usedlosti
-drobná a řemeslná výroba bez negativních vlivů
-mechanické dílny, servisní činnost
-sklady, parkování vozidel a techniky
-provozy služeb a obslužné objekty
-hobby zemědělství a chov
-ubytovací zařízení a ubytování zaměstnanců
-možnost parkování přímo na pozemku
Klíčové přednosti areálu
-propojení bydlení, podnikání a ubytování na jednom místě
-maximální viditelnost u E55, možnost legální reklamy (např. vozidlo s plachtou)
-velká variabilita díky zóně BV
-objekt A připraven k okamžitému využití
-připravené zázemí a prostor pro další úpravy
-strategická poloha u E55, nedaleko budoucího nájezdu na D3
Popis staveb
Budova A
-částečně renovovaná, nová plastová okna a zateplení
-osazen moderním ekologickým kotlem H8–A se zásobníkem
-vhodné pro kancelář, firemní zázemí, ubytování
-navazuje na prostornou stodolu – ideální pro sklad či dílnu
Budova B
-určena k celkové rekonstrukci
-vhodná jako dílna, sklad, garáže nebo rozšíření provozu
Technické parametry
-elektřina 3×25 A
-voda přivedena z obecní studny – zdarma
-odpady vedeny do vlastní jímky
-mírně svažitý oplocený pozemek
-přímý sjezd z komunikace E55
Pro koho je nemovitost ideální?
Pro stavební a servisní firmy, e-shopy, řemeslníky, dopravce, podnikatele s potřebou skladů či zázemí techniky, nebo investory hledající objekt s možností ubytování zaměstnanců a dalším rozvojovým potenciálem.
Energetická náročnost: třída G (PENB se připravuje).
V případě zájmu o další informace nás kontaktujte.
| Cena: | 4 990 000 Kč |
| Poplatky: | včetně provize, včetně právního servisu |
| Číslo zakázky: | N90769 |
| Typ nemovitosti: | Pozemky |
| Velikost: | Pozemek, komerční |
| Typ prodeje: | prodej |
| Stav: | Aktivní |
| Využití: | Bezbariérové bydlení |
| Konstrukce budovy: | Smíšená |
| Stav objektu: | Před rekonstrukcí |
| Typ budovy: | Samostatně stojící |
| Plocha pozemku: | 5037m² |
| Vybavení: | Sklep, Garáž, Parkování |
| Počet nadzemních podlaží: | 1 |
| Počet podzemních podlaží: | 1 |
| Energetická náročnost budovy: | G - Mimořádně nehospodárná |
| Typ domu: | Patrový |
| Plocha balkónu: | 0m² |
| Plocha lodžie: | 0m² |
| Užitná plocha přízemí: | 0m² |
| Plocha dílen: | 0m² |
| Plocha terasy: | 0m² |
| Plocha bazénu: | 0m² |
| Výška stropu: | 0m |
| Plocha sklepu: | 0m² |
| Počet garáží: | 0 |
| Odpad: | Jímka |
| Hypotéka - procenta: | 0% |
| Rok rekonstrukce: | 0 |
| Komunikace: | Asfaltová |
| Rok výstavby: | 0 |
| Voda: | Místní zdroj |

