Prodej RD Karlovy Vary
Palackého, Karlovy Vary 
7 590 000 Kč
Hledáte bydlení v klidné lokalitě v Karlových Varech? Pak jste tu správně.
Představuji Vám k prodeji rodinný dům v ulici Palackého v Karlových Varech, Stará Role, který se nachází na pozemku o celkové výměře 990 m2, z toho zastavitelná plocha činí 73 m2 a zahrada má 917 m2.
Podle ÚP města Karlovy Vary je pozemek součástí zastavěného území ve stabilizované ploše, což umožňuje rozšířit stávající dům nebo na pozemku postavit nový dům přesně podle vašich představ a to v souladu s územní regulací.
Dispoziční řešení domu:
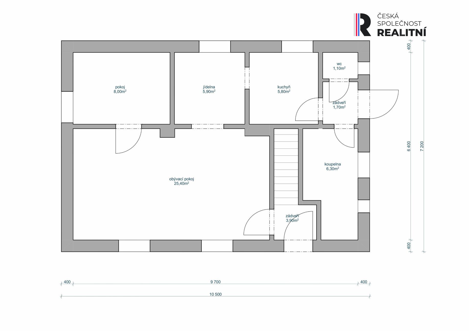
vstup do domu je řešen přes menší zádveří, ze kterého vstoupíte do hlavní obytné části, obývacího pokoje se vstupem do ložnice, menší jídelnou a kuchyňkou. Tato část disponuje podlahovým vytápěním a jsou zde i krbová kamna. V přízemí se nachází velká koupelna se sprchovým koutem a toaletou a při vstupu z chodbičky ještě jedna samostatná toaleta.
V 1. podkrovním patře se nacházejí dva pokoje (vybaveny radiátory) a jeden menší otevřený prostor.
Nemovitost je vybavena částečně nábytkem, spotřebiči v kuchyni.
Celý dům je vytápěn standardním teplovodním topením s radiátory. Kotel je elektrický umístěný ve sklepě spolu s bojlerem na teplou vodu. Teplo dále zajišťují krbová kamna v obývacím pokoji s vývodem na teplý vzduch i do podkroví. Dům je podsklepený.
Součástí kouzla této nemovitosti je krásná vzrostlá lípa přímo před domem, na jaře zelená jako naděje, v létě voní jako med, na podzim se její listy zbarví do zlatova .. tvoří přirozený středobod prostoru.
Skvělá příležitost jak pro bydlení, tak pro investici.
Tato místo má duši a potenciál – ideální pro ty, kdo hledají víc než jen čtyři zdi.
Představuji Vám k prodeji rodinný dům v ulici Palackého v Karlových Varech, Stará Role, který se nachází na pozemku o celkové výměře 990 m2, z toho zastavitelná plocha činí 73 m2 a zahrada má 917 m2.
Podle ÚP města Karlovy Vary je pozemek součástí zastavěného území ve stabilizované ploše, což umožňuje rozšířit stávající dům nebo na pozemku postavit nový dům přesně podle vašich představ a to v souladu s územní regulací.
Dispoziční řešení domu:
vstup do domu je řešen přes menší zádveří, ze kterého vstoupíte do hlavní obytné části, obývacího pokoje se vstupem do ložnice, menší jídelnou a kuchyňkou. Tato část disponuje podlahovým vytápěním a jsou zde i krbová kamna. V přízemí se nachází velká koupelna se sprchovým koutem a toaletou a při vstupu z chodbičky ještě jedna samostatná toaleta.
V 1. podkrovním patře se nacházejí dva pokoje (vybaveny radiátory) a jeden menší otevřený prostor.
Nemovitost je vybavena částečně nábytkem, spotřebiči v kuchyni.
Celý dům je vytápěn standardním teplovodním topením s radiátory. Kotel je elektrický umístěný ve sklepě spolu s bojlerem na teplou vodu. Teplo dále zajišťují krbová kamna v obývacím pokoji s vývodem na teplý vzduch i do podkroví. Dům je podsklepený.
Součástí kouzla této nemovitosti je krásná vzrostlá lípa přímo před domem, na jaře zelená jako naděje, v létě voní jako med, na podzim se její listy zbarví do zlatova .. tvoří přirozený středobod prostoru.
Skvělá příležitost jak pro bydlení, tak pro investici.
Tato místo má duši a potenciál – ideální pro ty, kdo hledají víc než jen čtyři zdi.
| Cena: | 7 590 000 Kč |
| Číslo zakázky: | N01699 |
| Typ nemovitosti: | Domy |
| Velikost: | Rodinný dům |
| Typ prodeje: | prodej |
| Stav: | Aktivní |
| Konstrukce budovy: | Cihlová |
| Stav objektu: | Dobrý |
| Typ budovy: | Samostatně stojící |
| Plocha: | 140m² |
| Plocha zastavěná: | 73m² |
| Plocha zahrady: | 917m² |
| Počet nadzemních podlaží: | 2 |
| Umístění nemovitosti v obci: | Klidná část obce |
| Občanská vybavenost: | Škola, Školka, Zdravotnická zařízení, Pošta, Supermarket, Kompletní síť obchodů a služeb |
| Doprava: | Vlak, Silnice, MHD, Autobus |
| Topení: | ÚT elektrické |
| Sítě: | 230V |
| Energetická náročnost budovy: | G - Mimořádně nehospodárná |
| Plocha parcely: | 990m² |
| Užitná plocha v podkroví: | 60m² |
| Užitná plocha v přízemí: | 70m² |
| K nastěhování: | 2025-07-01 |
| Charakter okolní zástavby: | Obytná |
| Voda: | Dálkový rozvod |
| Odpad: | Kanalizace |
| Typ domu: | Patrový |
| Počet pokojů: | 4 pokoje |
| Ostatní: | Plot |

